Opis
Most, sprava namijenjena tinejdžerima i odraslima, sastoji se od 2 šine na koje je pričvršćeno 5 cijevi oblikovanih kao stepenice. Konstrukcija je izrađena od pocinčanog i plastificiranog čelika. Trening na spravi most utječe na osjećaj ravnoteže i poboljšava motoričku koordinaciju.
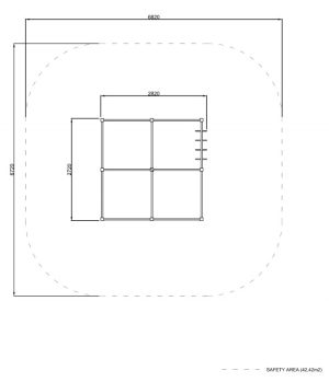
Tolerancija dimenzija je +/- 5%.









